PPH H61F-10S, обратный клапан муфтовый с односторонним разъемом, DN15-100, стандарта GB

Zаводская цена Zемляной желтый PPH одногнездовой соединительный пластинчатый обратный клапан DN15-DN100 Пластиковый обратный клапан для hимической и санитарной промышленности
Тип: Пластиковые обратные клапаны
Место происhождения: Китай
Бренд: KXPV
Номер модели: H61F-10S
Применение: Общее
Температура среды: средняя температура, нормальная температура
Питание: Ручное
Среда: Кислота
Размер порта: DN15-DN100
Структура: Тип розетки
Название продукта: Обратный клапан с одним штуцером
Срок доставки: 7 дней
Минимальный заказ: 1 шт
Цвет: землисто-желтый

Класс давления: 1,0 МПа(10 бар)

Структурные особенности продукта

1. Zащита от обратного потока
Благодаря уменьшенному количеству компонентов этот клапан менее восприимчив к внешнему давлению. Кроме того, его высокая точность полностью предотвращает обратный поток.

2. Компактный и легкий
Компактная конструкция и легкая конструкция обратного клапана позволяют устанавливать его в ограниченном пространстве и просты в обслуживании.

Список ограничений по температуре приложения

Материал Средняя температура℃ Материал Средняя температура℃
PVC-C -20℃~ 95℃ PVC-U -5℃~ 45℃
FRPP -20℃~ 120℃ PPH -20℃~ 110℃
PVDF 40℃~ 150℃

Таблица материалов деталей
Номер Наименование Материал
1 Корпус FRPP,PVDF,PVC-C,PVC-U,PPH
2 Соллд мяч FRPP,PVDF,PVC-C,PVC-U,PPH
3 Крышка клапана FRPP,PVDF,PVC-C,PVC-U,PPH
4 Резиновое уплотнение FPM,EPДM
5 Гнездовое соединение FRPP,PVDF,PVC-C,PVC-U,PPH
6 Стопорная гайка FRPP,PVDF,PVC-C,PVC-U,PPH

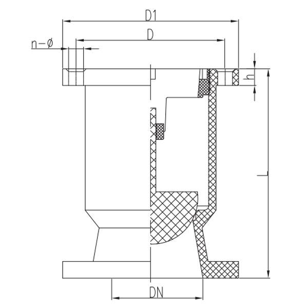
Детальный чертеж узла обратного клапана с одним соединением

Список измерений

Спецификация DN L D Z
15 86 20 20
20 103 25 24
25 117 32 26.5
32 144 40 26
40 154 50 31
50 175 63 35
65 270 75 45
80 275 90 45
100 320 110 57

Обратная связь по сообщению
О нас
Kaixin Pipeline Technologies Co., Ltd.

Основанная в 1999 году, компания Kaixin Pipeline Technologies Co., Ltd. является высокотехнологичным предприятием, объединяющим НИОКР, производство, продажи и сервисное обслуживание. Компания обладает множеством престижных сертификатов, включая статус национального высокотехнологичного предприятия, «Маленький гигант» (специализированное и передовое малое и среднее предприятие), Национальный чемпион по отдельному продукту (развивающаяся категория), Провинциальное технологически ориентированное МСП, Специализированное и передовое МСП Нинбо, Чемпион по отдельному продукту Нинбо (развивающаяся категория), Нинбоский научно-исследовательский центр технологий полимерных труб и арматуры, Районное зеленое предприятие, Четырехзвездочное инновационное предприятие по управлению в Нинбо, а также Уровень зрелости возможностей управления корпоративными данными 2.

Мы специализируемся на разработке, производстве и поставке неметаллической антикоррозионной продукции для химической промышленности, включая пластиковые клапаны, трубы, фитинги и антикоррозионные насосы. Наш ассортимент продукции охватывает такие материалы, как ХПВХ (PVC-C), НПВХ (PVC-U), ПВДФ (PVDF), ППГ (PPH) и армированный полипропилен (FRPP), с широким спектром типов и спецификаций. Примечательно, что диаметр наших дисковых затворов может достигать DN1000, а труб и фитингов — до DN800, что заполняет пробелы на рынке и поддерживает наши конкурентные преимущества в отрасли.

Руководствуясь принципом «Движимые технологиями, идем в ногу со временем», Kaixin ежегодно инвестирует в НИОКР около 10 миллионов юаней. Мы обеспечиваем превосходное качество продукции за счет стандартизированного автоматизированного производства и строгого отбора импортного сырья. В соответствии с нашей стратегией международного развития, мы постоянно отслеживаем мировые рыночные тенденции и используем цифровые каналы, чтобы предложить клиентам по всему миру высококачественную продукцию «Сделано в Китае».

 

Научно-производственная база в Нинбо • Фэнхуа

При общих инвестициях в размере 200 миллионов юаней, Kaixin Ultra-Pure Pipe Technology (Ningbo) Co., Ltd. создала лабораторию новых материалов в сотрудничестве с университетами и научно-исследовательскими институтами, построила современную производственную базу и установила 8 полностью автоматизированных линий по производству модифицированных пластмасс и 8 линий по производству полимерных материалов. Объект предназначен для НИОКР, производства и применения новых модифицированных пластмасс и полимерных материалов. Kaixin также стремится привлекать лучших специалистов различных дисциплин, постоянно стимулируя инновации в продукции и развитие бренда, с целью стать всемирно признанным лидером в области исследований, разработки и производства полимерных клапанов, труб и фитингов.

Почетная грамота
  • honor
  • honor
  • honor
  • honor
  • honor
  • honor
  • honor
  • honor
  • honor
Новости